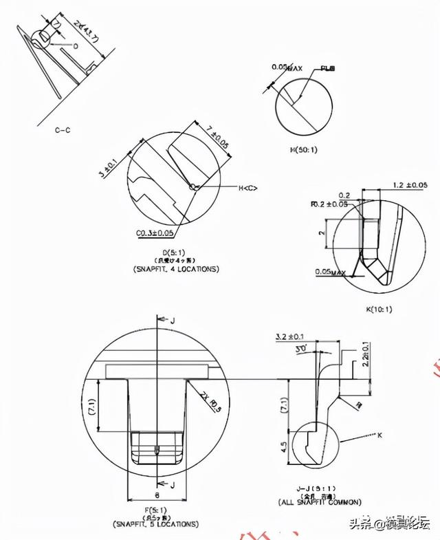
仪表窗面板产品见图1,产品最大外形尺寸为317.93 mm x 167.80mm x 118.80 mm, 塑件平均胶位厚度1.50 mm,塑件材料为PP TD20,缩水率为1.012,塑件质量为161.18克。塑件技术要求为不得存在披峰、注塑不满、流纹、气孔、翘曲变形、银纹、冷料、喷射纹等各种缺陷。


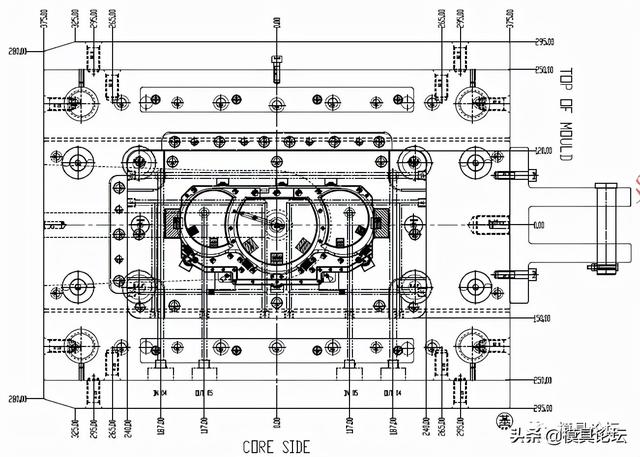
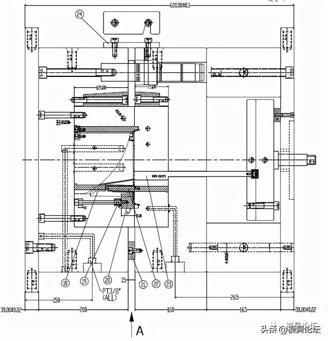
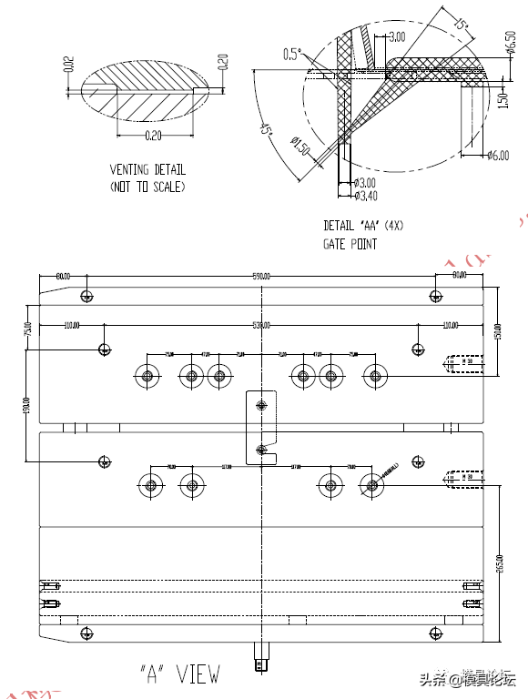
仪表窗面板是日本某轿车的驾驶室前端仪表盘内部支架。根据塑件的使用要求,采用PP TD20制造,这种材料就是在PP中加入碳酸钙(滑石粉),通过增加填料改进塑料物性。PP料添加碳酸钙的用处常见的还有制造冰箱抽屉和汽车保险杠等。从图1可以看出,塑件结构复杂。塑件高低起伏较大,边缘多处细小的擦穿位,这种塑件的模具设计主要难点在于浇口设计,塑件填充,如何保证尺寸公差和如何防止顶出变形等方面。另一方面,塑件的模具结构简单,没有滑块等复杂结构。设计两支斜顶是为了顶出需要,避免在顶出时夹住塑件。 塑件尺寸较大,模具设计型腔排位为1出1,模具设计图见图2所示。模胚为仿照标准模胚设计的非标模胚CI 5075,为适应日本注塑机的码模方式,模胚一边倒角,没有设计定位圈,在面板和底板开设大面积下沉式码模槽,同时在面板和底板侧面设计码模螺丝孔。面板和底板的码模槽分别见图4和图5所示。设计AB板分型面间距为15,在分型面的动模侧设计了两处平衡块21,使模具受力平衡。在模具动模部分,模胚各板之间设计了定位销,以增加模具刚度。 浇注系统设计采用了潜伏式浇口设计,浇口套设计放大图见图6. 此处衬套比浇口套单边大0.2~0.25,以免形成倒扣,影响水口料取出。熔融塑料从小喞嘴01中的主流道进入分型面后,经潜伏式浇口从中间大圆窗口的中心潜入型腔。

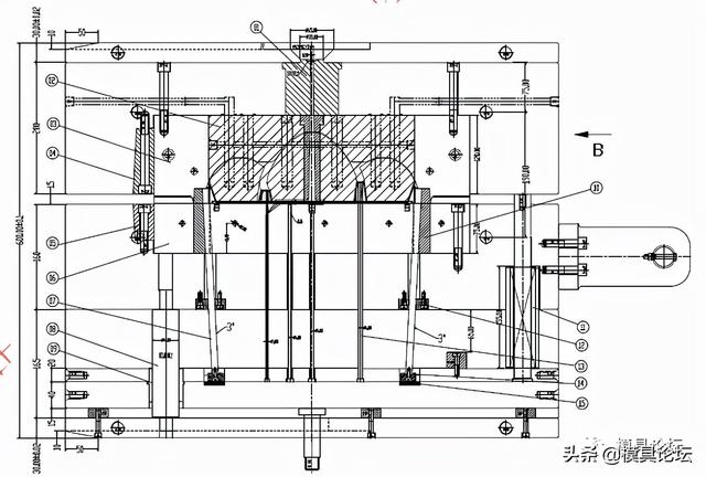
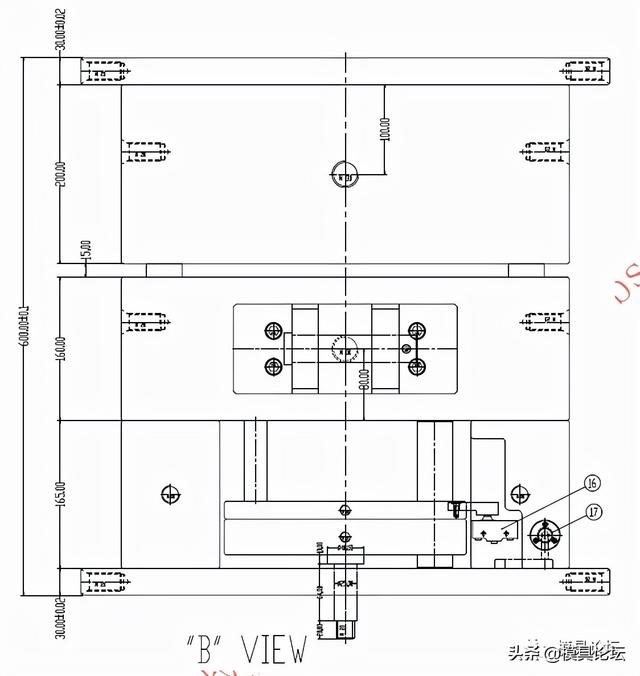
塑件尺寸较大,因此前后模仁尺寸相应较大,因此,模仁下框采用挤紧块定位压紧。前后模仁在四角采用虎口锁紧。对于前模仁,结合塑件的结构特点,将前模仁分为两大部分,两部分之间用斜面互相锁紧,并用螺钉锁紧在一体。塑件边缘的擦穿位全部做了镶件,见3D图。 塑件高度较大,对后模的包紧力较大,而且受力不均匀,塑件两端(模具天地侧)分别设计了一支斜顶,此两处的胶位较深,全部在后模,必须设计顶出机构,如果设计直顶,则会夹住塑件,因此设计斜顶。三个半圆形凸起的边缘,顶出力最大,设计了直顶,在其余部位设计顶针顶出。 为了使顶出机构顺畅,对于顶针板必须设计导向机构。导柱08和导套09采用MISUMI标准件,为顶出机构导向。这种导柱直接镶在B板背面和底板上,精度较直接固定在底板上的导柱精度更高,同时起到撑头的作用。设计了行程开关16以确保模具回位。顶棍孔内顶杆也设计了特殊的顶杆。


图1仪表窗面板产品图








图2 仪表窗面板模具图

图3 3D模具图

图4 面板的码模槽设计

图5 底板的码模槽设计

图6 浇口套设计
模具论坛版权所有 |
最新评论