打印机底壳产品见图1,产品最大外形尺寸为381.91 mm x 287.33 mm x 99.25 mm, 塑件平均胶位厚度2.00 mm,塑件材料为HIPS,缩水率为1.005,塑件质量为507.40克。塑件技术要求为不得存在披峰、注塑不满、流纹、气孔、翘曲变形、银纹、冷料、喷射纹等各种缺陷。

图1 打印机底壳产品图 打印机底壳为日本某品牌打印机的底壳。从图1可以看出,塑件结构造型为复杂壳体,动定模均有很多骨位和柱位等,尺寸较大,模具为大型模具。塑件产品图、模具3D图均见附档。塑件产品图除了标注产品尺寸和公差外,还标注了详细的技术要求,此外,还有表面蚀纹、消光纹的部位,表面抛光的区域等。

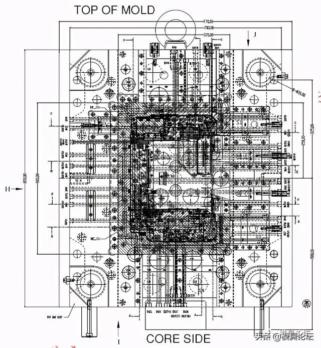
对于大型模具,模具设计的难度在于保证塑件尺寸公差和技术要求的同时,注射成型过程稳定,浇注系统设计合理,顶出过程平稳,塑件无变形,注塑周期满足模具设计式样书的要求。任何一点的小失误就会造成很大的损失,因为大型模具的试模成本高昂。 模具设计型腔排位为1出1. 塑件四边共有7处需要设计滑块抽芯,将两处大滑块分别设计在模具天地侧。其中滑块7和滑块9由于位置所限,利用滑块驱动滑块以改变抽芯方向。 塑件尺寸较大,浇注系统设计也存在很大难度,浇口位置和数量的设计是关键。大型塑件,骨位和结构较复杂时,塑料流程较长,浇注系统的平衡非常重要。浇口数量过多,或浇口位置不合理,则会造成注塑压力过大,塑料变形大,塑料原料浪费,还会延长注塑周期,造成经济损失。如果浇口过少,也会造成填充困难。 在早期的模具设计中,浇注系统完全依靠模具设计者的经验来解决问题。由于计算机技术快速发展,模具设计已从传统的经验设计转变为计算机辅助设计、辅助编程与加工。其中最重要的是建立在聚合物流变学基础上的对塑料熔体在流道和模腔内的充模和流动的模拟,模流分析软件为正确确定浇注系统提供了便利条件。在大型公司的产品研发部门,已经设立了专门研究模流分析的部门。例如,日本佳能公司,产品研发部门的模流分析工程师,专门对塑件进行模流分析,为产品设计提供技术支撑。

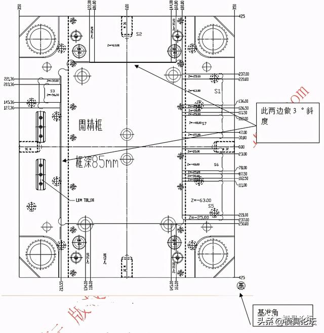
设立专门部门和固定的模流分析人员,便于大数据的积累,也便于确定合理的注塑周期,为精益生产创造了条件。通过应用模流分析软件,打印机底壳产品需要设计3个浇口,见模具设计图2. 采用YUDO热流道系统进胶。 由于采用热流道系统,模胚为非标模胚7085,为了提高定位精度,在模胚的四角设计了虎口,A板的虎口凸出,B板的虎口凹进,虎口角度为5゜~10゜. 大型模具,动定模需要分别设计定位销,动模的定位销为?25,定模的定位销为?40,定模的采用导柱代替,主要是对于多层模板的热流道模具,由于各模板的温差和热膨胀不同,会产生较大应力,需要采用大直径的定位销,以保护热嘴不受力。以及在装模时防止热嘴碰坏。在模胚的操作侧,设计了2个斜度定位块。 对于打印机底壳模具这样复杂的机壳模具,前后模仁的设计也十分关键。在模具设计之前,进行塑件检讨,对于塑件边缘形状有变化处,仔细分析分型面的走向,确定分型面。仔细检查塑件的脱模斜度,对存在疑问的地方,及时与客户确认。在日本产品图中,脱模斜度叫勾配,确定脱模斜度以及段差,一定要得到客户的确认。一般会召开专门的打合会议,专门研究开模的具体问题。 前后模仁的长宽均为370×500,长宽超过200以上的模仁,下框时存在一定困难,因为尺寸超过一般平面磨床的加工范围,开精框的尺寸和模仁的尺寸精度都难以保证。在这种情况下,模仁需要采用基准角定位并用挤紧块压紧。具体做法就是以模胚基准角为基准,在远离基准角的两个框边做3゜斜度,利用挤紧块压紧模仁。B板精框图见图4,针对动模骨位较多的情况,模具注塑时的排气非常重要。因此,定模为了保证塑件表面质量,只在局部分割镶件。动模模仁全部打散做镶件,在模具设计时,需要根据塑件结构,先确定几个大块,再分割细小镶件。确定大镶件时,需要与冷却运水的设计结合起来,尽可能设计直通运水,才能保证冷却效率。对于无法冷却的封闭深腔角落,需要设计铍铜镶件散热。


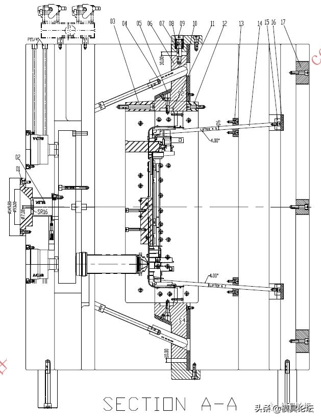
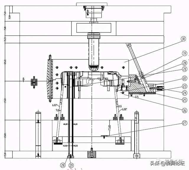
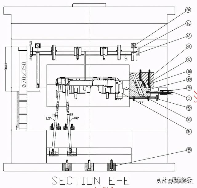
分割镶件和用挂台固定镶件时日本模具的一大特色。打散做镶件后,后模仁镶件很多,需要设计镶件平面组装图,使模具镶件类似于拼积木式装配,动模镶件排列图见图3。镶件在制作时底部需要倒角,模胚精框框底做R6,以增加模具强度和刚度。小镶件全部采用挂台,只有大镶件和底部压有运水胶圈的镶件采用螺钉固定。对于大型模具,B板底部较厚,如果小镶件采用螺钉固定,则螺钉孔很深,光线较差,容易漏装螺钉。 为了防止塑件粘定模,在定模也设计了顶出机构,包括顶针板61和63,驱动元件为弹簧60,利用复位杆碰分型面复位。 所有滑块全部采用斜导柱驱动,并在滑块底面和斜面设计了耐磨板,便于组装和调节。大滑块所受的侧向涨开力较大,采用原身留的铲基,其余小滑块的铲基视需要设计。 模具的顶出元件为顶针,司筒,直顶和斜顶。所有斜顶在B板背面均设计了导向块,在顶针板设计耐磨块,以延长寿命。斜顶采用了防松设计,在螺钉下加了弹簧垫圈。 模具钢材采用日本模具钢NAK80,标准件采用日本三住MISUMI品牌标准件。







图2打印机底壳模具图

图3 动模镶件排列图

图4 B板结构图

图5 斜顶锁紧图 图5 斜顶锁紧图
模具论坛版权所有 |
最新评论
查看全部评论(1)