负压开关面板产品见图1,产品最大外形尺寸为182.00 mm x 100.00 mm x 25.50 mm, 塑件平均胶位厚度2.00 mm,塑件材料为ABS+PC,缩水率为1.005,塑件质量为51.20克。塑件技术要求为不得存在披峰、注塑不满、流纹、气孔、翘曲变形、银纹、冷料、喷射纹等各种缺陷。

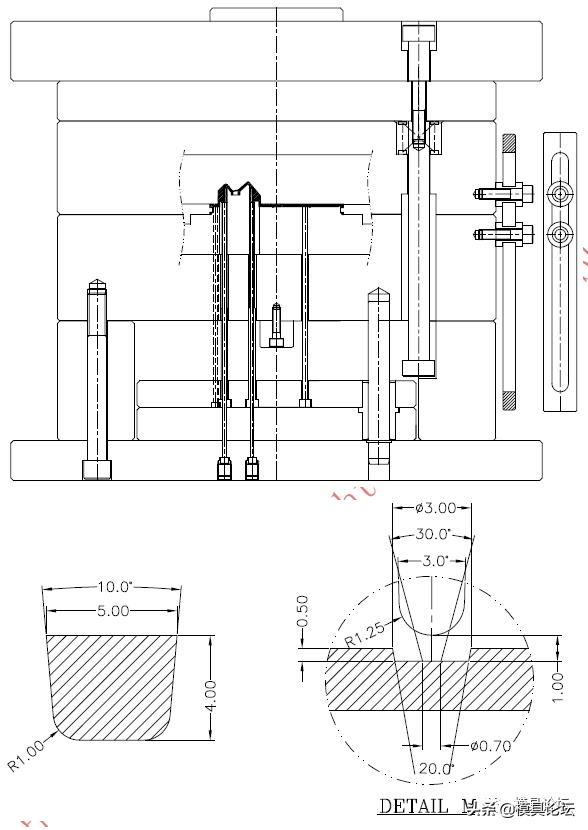
图1 负压开关面板产品图 从图1可以看出,塑件结构造型为扁平复杂壳体,定模局部有凸起,有四个大小不同的开口。塑件顶面有3个凸起的圆柱,动模部分内部挖空,供联结自攻螺钉使用。塑件材料为ABS+PC,该材料俗称塑料合金,具有良好的刚度和强度,塑料合金特别适合于制造精密塑件。有四种材料是机壳类精密塑件常用的原材料,分别是ABS、PC、PA和POM,现在随着PPO、PPS等新的工程材料的广泛使用,它们被用来制作精度更高的机芯类塑件,例如,电子血压计里的传感器移动活塞就是采用PPO制作的。对于精密塑件,在2D产品图上要准确地标注制品公差,必要时需要标注几何公差。对于没有公差要求的尺寸,所谓自由公差尺寸,其公差也需要有验收标准。图3为塑件自由尺寸公差的例子,供设计时参考。 塑件4个侧面均为90゜垂直面,每个侧面都存在矩形小方孔,因此四个侧面均需要设计大滑块抽芯。每个矩形小方孔的两侧分别有一个宽1.5mm的槽,组装时,此部分可以有局部弹性变形,使相配合的零件的卡扣能够顺利装入。

根据塑件尺寸和四边抽芯的模具结构,模具设计的型腔排位为1出1.浇注系统设计采用了三板模的点浇口浇注,浇口数量为4点。见模具设计图2. 塑件形状比较规则,分型面为平面。合理选择分型面是设计注塑模具的一个重要环节,不仅有利于浇注系统的布置,提高加工的工艺性,避免注塑机承受临界载荷,保证塑件在开模后留在顶出系统一侧。而且有利于简化模具结构,提高制品尺寸精度以及表面质量。浇注系统设计、顶出系统设计和分型面设计是决定一套模具基本结构的三要素。 所有的注塑模具设计的书籍都会编写分型面设计的相关章节。分型面是指在塑件上能够使塑件脱离模具的最大投影表面。通过分型面可将模具分成动模和定模两个部分,打开此两部分可使塑件脱模。分模面是存在于模具上的可分离表面。一般一套模具只有一个分型面。两板模在没有推板时通常只有一个分模面,与分型面重合。分型面与分模面的区别见图4。因此,在检讨模具结构时,会在塑件上画出分型面,并用箭头标出动定模的方向。在塑件上的分型面一般只有一个,其余的都是局部的分型面,比如滑块抽芯时的分型面。 分型面与分模面容易混淆。开模时两板模的浇注系统凝料需要从分型面取出,三板模的浇注系统凝料需要从分模面取出。塑件需要从分型面取出,金属嵌件等需要从分型面安放于模具内。 负压开关面板产品四面需要设计大滑块抽芯,四个大滑块的分割需要注意,滑块在交界处不可设计成线接触,两个大滑块加宽与两个天地侧的滑块碰穿。四个滑块均为镶件结构,便于调整。所有滑块均采用斜导柱驱动。斜楔为镶件结构。 三板模具的顺序开模机构有多种。多数是采用行程限位螺钉与树脂开闭器来控制模具开合。树脂开闭器的优点是成本低,更换方便。在一些高精度透明产品的注塑中,不宜采用树脂开闭器,因为在长期的开合模中,树脂开闭器与金属模板之间存在摩擦,因而会有微小的粉末掉下来落在产品上。本套模具由于四面大滑块抽芯,模板角部空间位置有限,因此,采用了拉板结构代替树脂开闭器。

塑件的顶出采用顶针和司筒顶出。设计了中托司为顶针板导向。前后模的冷却回路均为直通式运水。




图2 负压开关面板模具图

图3 塑件的自由公差

图4 分型面与分模面的区别
模具论坛版权所有 |
最新评论